- Woonoppervlakte
- Circa 130 m²
- Perceeloppervlakte
- Circa 180 m²
- Bouwjaar
- Gebouwd in 2019
- Aantal kamers
- 5 kamers (4 slaapkamers)
## HOUSE FOR SALE - ENGLISH BELOW ##
A'dam Good Story presenteert, met trots, de GOOISE KANT 258.
Royale hoekwoning met maar liefst 130 m2 wonen met circa 110 m2 buitenruimte.
2 parkeerplaatsen op eigen terrein!
De open plattegrond van de woning biedt veel ruimte aan wonen en genieten in de woonkamer, tuin, steiger en laag gelegen loungehoek aan het water.
Aangesloten op stadsverwarming, energielabel A++, 8 zonnepanelen - dus toekomstbestendig!
Dit moet je komen zien, beleven en voelen ... een unieke kans.
Bel ons vandaag nog voor een bezichtigingsaanvraag.
Deze woning beschikt over de volgende kenmerken:
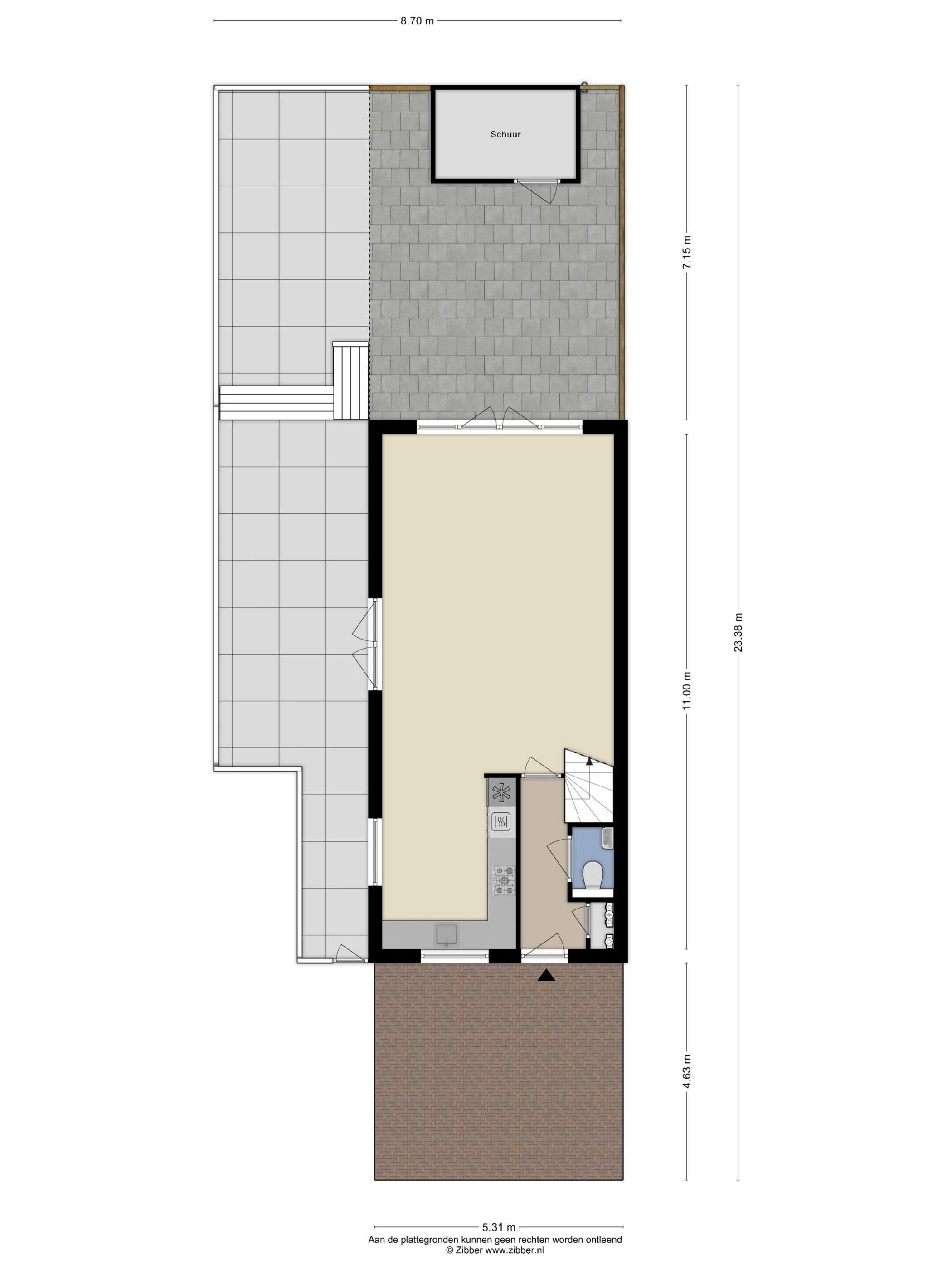
• Fraaie uitgebouwde hoekwoning met uitzicht over groen en water, bouwjaar 2019;
• Unieke buitenpartij met tuin en vlonders waar de zon op komt en de hele dag schijnt;
• Ruim uitgebouwde woonkamer met open keuken en dubbel openslaande deuren aan weerszijden;
• Vloerverwarming op de begane grond;
• 4 ruime slaapkamers, optioneel is er eenvoudig een 5e (slaap)kamer te realiseren;
• 2de verdieping met veel mogelijkheden, plafondhoogte ca 5m met prachtige Velux dakserre;
• Energielabel A++, 8 zonnepanelen, aangesloten op stadsverwarming;
• Betaald parkeren niet van toepassing, 2 parkeerplaatsen op eigen terrein;
• Jaarlijkse erfpachtcanon van €2.377,- vast tot en met 30 juni 2068. Deze canon staat vast per 25 jaar en wordt voor het eerst herzien op 30 juni 2043 op basis van de waarde van 2018, ZEER GUNSTIG DUS. In de meeste gevallen is de jaarlijkse canon fiscaal aftrekbaar;
• Notariskeuze aan koper, mits in Amsterdam.
De Gooise Kant is een intieme buurt waar een ieder elkaar kent en de kinderen heerlijk buiten spelen. Ontworpen door Brummelhuis Architecten, zijn de hoekwoningen aan het water uitgerust met grote verlaagde terrassen om een goede en blijvende overgang te maken naar het openbare water.
De wijk is idilisch gelegen tussen de Gooise Weg en de Karspeldreef, welke je inrijdt vanaf het talud en zich kenmerkt door veel groen en ruimte, afgesloten door water met kleine bruggetjes, speeltuinen en boomhutten.
I N D E L I N G
Deze woning heeft de WOW factor; aan het water met hoge en lage vlonders en een prima achtertuin om te loungen, bubbelen of gewoon avond te eten.
De woonkamer is uitnodigend en loopt naadloos over in de tuin. De open keuken is binnen handbereik en perfect om een maaltijd of wat hapjes te bereiden.
De hele dag kun je binnen en buiten combineren, of het nu voor een ontbijt is, lekker in de jacuzzi te zitten of te loungen met vrienden.
Vanuit de woonkamer heb je, waar je ook kijkt, vrij uitzicht. Aan de voorkant van de parkeer je de auto's en loop je via de zijkant naar tuin.
De eerste verdieping is een oase van rust met een heerlijke werkkamer/babykamer, twee ruime slaapkamers en een badkamer.
De badkamer is mooi vormgegeven en praktisch ingedeeld.
De bovenste woonlaag is een ruime etage wat aanvoelt als een kathedraal. Hier zijn legio mogelijkheden om een mooie studio te voor de ouders te creëren of een paradijs voor de kinderen met klimmuur, eigen badkamer en een loft.
De dakserre is uniek en geeft een ruimtelijk gevoel.
Het buitengedeelte is een beleving op zich. Een heerlijke tuin met schuur en een achterom zodat fietsen etc. veilig staan.
Laat je vooral inspireren, deze woning nodigt het creative talent uit.
L O C A T I E
Deze riante hoekwoning ligt nabij winkelcentra de Poort en de Kameleon.
Het Arena gebied ligt om de hoek, lopend naar uw favoriete concert of voetbalwedstrijdwedstrijd, hier komt Nederland samen voor de Johan Cruijff ArenA, de Ziggo Dome, Pathé ArenA en het Afas Live theater.
Het Station Bijlmer Arena verbindt u met de rest van Nederland, binnen 17 minuten op Amsterdam Centraal Station en binnen 20 minuten op Utrecht Centraal.
De A1, A2, A9 en A10 zijn uw directe uitvalswegen. Met de fiets zit u zo in de prachtige natuur. Mocht dit nog niet genoeg zijn dan heeft u legio mogelijkheden om te recreëren.
Het Nelson Mandelapark met de atletiekbanen, voetbal- en hockeyvelden, het skatepark en de gigantische speeltuin voor kinderen. Zoek ook gerust het Diemerbos op of de Gaasperplas waar u kunt surfen/zeilen, lekker frisbeeën, barbecueën en zwemmen, laat de zomer maar komen!
Kortom, u heeft de ruimte van buiten wonen en toch in de stad want met de fiets bent u in 30 minuten op het Museumplein en in een mum van tijd met de metro in de stad.
C O N C L U S I E
Dit is een buitenkans om een parel als deze woning tegen te komen.
I N T E R E S S E
Bel dan A’dam Good Story voor een bezichtiging 088-4422820
Bij A’dam Good Story hebben wij het vermogen de juiste scène te creeeren voor de aan- en verkoop van uw woning. Onze Antroposofische makelaar zet uw woning in het juiste licht met behulp van natuurlijke styling, professionele fotografie en een meeslepende tekst. Onze bezichtigingen zijn een unieke beleving begeleid met de juiste catering en sfeervolle muziek.
Deze informatie is door ons met zorgvuldigheid samengesteld. Onzerzijds wordt echter geen enkele aansprakelijkheid aanvaard voor enige onvolledigheid, onjuistheid of anderszins, dan wel de gevolgen daarvan.
## ENGLISH TEXT ##
A'dam Good Story proudly presents GOOISE KANT 258.
Spacious corner house with no less than 130 m2 of living space and approximately 110 m2 of outdoor space.
Two parking spaces on private property!
The open floor plan of the house offers plenty of space to live and enjoy life in the living room, garden, jetty, and low-lying lounge area by the water.
Connected to district heating, energy label A++, eight solar panels—so future-proof!
This you must come see, experience and feel ... a unique opportunity.
Call us today for a viewing request.
This home features the following:
• Beautifully extended corner house with views over greenery and water, built in 2019;
• Unique outdoor area with garden and decking where the sun rises and shines all day long;
• Spacious extended living room with open kitchen and double French doors on both sides;
• Underfloor heating on the ground floor;
• 4 spacious bedrooms, with the option to easily create a 5th (bed)room;
• 2nd floor with lots of possibilities, ceiling height approx. 5m with beautiful Velux roof windows;
• Energy label A++, 8 solar panels, connected to district heating;
• Paid parking not applicable, 2 parking spaces on own property;
• Annual ground rent of €2,377 fixed until June 30, 2068. This rent is fixed for 25 years and will be reviewed for the first time on June 30, 2043, based on the value in 2018, SO VERY FAVORABLE. In most cases, the annual rent is tax deductible;
• Notary choice to buyer, if in Amsterdam.
The Gooise Kant is an intimate neighborhood where everyone knows each other and the children enjoy playing outside. Designed by Brummelhuis Architects, the waterfront corner homes are equipped with large lowered terraces connected to the public water.
The neighborhood is idilically situated between the Gooise Weg and the Karspeldreef, which you enter from the embankment and is characterized by lots of greenery and space, enclosed by water with pieces of rough areas with tree houses, bridges and playgrounds.
L A Y O U T
This home has the WOW factor; located on the water with high and low decking and a great backyard for lounging, bubbling, or simply enjoying dinner.
The living room is inviting and flows seamlessly into the garden. The open kitchen is within easy reach and perfect for preparing a meal or some snacks.
You can combine indoors and outdoors all day long, whether it's for breakfast, relaxing in the jacuzzi, or lounging with friends.
From the living room, you have an unobstructed view wherever you look. You can park your cars at the front and walk through the side to the garden.
The first floor is an oasis of calm with a lovely study/nursery, two spacious bedrooms, and a bathroom.
The bathroom is beautifully designed and practically laid out.
The top floor is a spacious floor that feels like a cathedral. There are countless possibilities here to create a beautiful studio for the parents or a paradise for the children with a climbing wall, private bathroom, and a loft.
The roof terrace is unique and gives a spacious feeling.
The outdoor area is an experience in itself. A lovely garden with a shed and a back entrance so that bicycles etc. can be stored safely.
Be inspired, this house invites creative talent.
L O C A T I O N
This spacious corner house is located near shopping centers de Poort and de Kameleon.
The Arena area is around the corner, walk to your favorite concert or soccer game, here the Netherlands comes together for the Johan Cruijff ArenA, the Ziggo Dome, Pathé ArenA and the Afas Live theater.
Bijlmer Arena Station connects you to the rest of the Netherlands, within 17 minutes at Amsterdam Central Station and within 20 minutes at Utrecht Central Station.
The A1, A2, A9 and A10 are your direct exit roads. By bike you are in the beautiful countryside in no time. If this is not enough, you have plenty of opportunities for recreation.
The Nelson Mandela Park with its athletics tracks, soccer and field hockey fields, skate park and giant playground for children. Also feel free to visit the Diemerbos or the Gaasperplas where you can surf/sail, play frisbee, barbecue and swim, let the summer come!
In short, you have the space of living outside and yet in the city because by bike you are in 30 minutes on the Museumplein and in no time by metro in the city.
C O N C L U S I O N
This is an unique opportunity to come across a gem like this property.
I N T E R E S T E D
Then call A'dam Good Story for a viewing 088-4422820
At A'dam Good Story we have the ability to create the right scene for the purchase and sale of your home. Our Anthroposophic real estate agent puts your home in the right light using natural styling, professional photography and compelling copy. Our viewings are a unique experience accompanied with appropriate catering and atmospheric music.
This information has been carefully compiled by us. However, no liability is accepted for any incompleteness, inaccuracy or otherwise, or the consequences thereof. Lees de volledige omschrijving
Overdracht
- Vraagprijs
- € 700.000 k.k.
- Status
- Beschikbaar
- Aanvaarding
- In overleg
Bouw
- Object type
- Eengezinswoning, hoekwoning
- Soort bouw
- Bestaande bouw
- Bouwjaar
- 2019
- Soort dak
- Samengesteld dak bedekt met bitumineuze dakbedekking en pannen
Oppervlakte en inhoud
- Woonoppervlakte
- 130 m²
- Perceeloppervlakte
- 180 m²
- Inhoud
- 340 m³
- Externe bergruimte
- 6 m²
- Gebouwgeb. buitenruimte
- 108 m²
Indeling
- Aantal kamers
- 5 kamers (4 slaapkamers)
- Aantal badkamers
- 1 badkamer en 1 apart toilet
- Badkamervoorzieningen
- Douche, inloopdouche, toilet, wastafel, en wastafelmeubel
- Aantal woonlagen
- 3 woonlagen
- Voorzieningen
- Dakraam, glasvezelkabel, mechanische ventilatie, natuurlijke ventilatie, TV kabel, en zonnepanelen
Energie
- Energielabel
- A
- Energielabel registratie
- 16-10-2025
- Verwarming
- Stadsverwarming
- Warm water
- Stadsverwarming
Buitenruimte
- Ligging
- Aan park, aan water, in woonwijk, open ligging en vrij uitzicht
- Tuin
- Achtertuin, voortuin en zijtuin
- Afmetingen achtertuin
- 75 m² (15,00 meter diep en 5,00 meter breed)
- ligging tuin
- Gelegen op het zuidoosten bereikbaar via achterom
Bergruimte
- Schuur / berging
- Vrijstaande houten berging
- Voorzieningen
- Elektra
Parkeergelegenheid
- Soort parkeergelegenheid
- Op eigen terrein
Energieverbruik in Amsterdam
Energielabel deze woning
Energielabel A
Publicatie energielabel: 16-10-2025
Stroomverbruik per jaar
(Gemiddelde hoekwoning in Amsterdam)
Gasverbruik per jaar
(Gemiddelde hoekwoning in Amsterdam)
* Cijfers zijn afkomstig van het CBS en bedoeld als indicatie en kunnen verschillen voor deze woning
Indicatie hypotheeklasten
Eigen inleg:
Spaargeld / overwaarde
Rente:
Laagste 10-jaars rente
Laagste 10-jaars rente
2,75% - Centraal Beheer Groen... - NHG
3,04% - Argenta Groen Hypothee... - 80%
Laagste 20-jaars rente
3,18% - Argenta Groen Hypothee... - NHG
3,39% - Argenta Groen Hypothee... - 80%
Laagste 30-jaars rente
3,35% - Argenta Groen Hypothee... - NHG
3,56% - Argenta Groen Hypothee... - 80%
Hypotheek:
Bruto maandlasten: € 0 p/m
Netto maandlasten: € 0 p/m
Hoe berekenen we dit?
Het rentepercentage is gebaseerd op de laagste 10 jaars vaste rente voor één hypotheekdeel. De vermelde rente (3.04% zonder NHG) is gecontroleerd op 30-10-2025. Deze berekening is gebaseerd op een annuïteitenhypotheek die volledig wordt afgelost, waarbij de maandlasten gedurende de gehele looptijd gelijk blijven. De werkelijke rente en netto maandlasten kunnen variëren, afhankelijk van uw persoonlijke situatie en de hypotheekverstrekker. Raadpleeg een financieel adviseur voor een nauwkeurige berekening en advies. Aan deze berekening kunnen geen rechten worden ontleend; het dient enkel als indicatie.
Documentatie
Kadastrale kaart
Leefomgeving
Plattegronden PDF
Brochure
WOZ waarderapport
BAG uittreksel
Bezichtiging
Bod uitbrengen
Waardebepaling
Zoekopdracht
Alles downloaden
Zonnegrenzen bekijken
Inwoners in Amsterdam
Cijfers voor postcodegebied 1104
- Totaal aantal inwoners
- 15495 inwoners
- Mannen
- 50%
- Vrouwen
- 50%
Inwoners in Amsterdam
Cijfers voor postcodegebied 1104
- tot 15 jaar
- 18%
- 15 tot 25 jaar
- 15%
- 25 tot 35 jaar
- 31%
- 45 tot 65 jaar
- 26%
- 65 en ouder
- 11%
Huishoudens in Amsterdam
Cijfers voor postcodegebied 1104
- Eenpersoons zonder kinderen
- 56%
- Meerpersoons zonder kinderen
- 12%
- Huishoudens zonder kinderen
- 68%
Huishoudens in Amsterdam
Cijfers voor postcodegebied 1104
- Huishoudens met één kind
- 17%
- Huishoudens met meerdere kinderen
- 15%
- Huishoudens met kinderen
- 32%
Woningen in Amsterdam
Cijfers voor postcodegebied 1104
- Woningen voor 1945
- 1%
- Woningen tussen 1945 en 1965
- 1%
- Woningen tussen 1965 en 1975
- 43%
- Woningen tussen 1975 en 1985
- 26%
- Woningen tussen 1985 en 1995
- 1%
Woningen in Amsterdam
Cijfers voor postcodegebied 1104
- Woningen tussen 1995 en 2005
- 3%
- Woningen tussen 2005 en 2015
- 18%
- Woningen na 2015
- 8%
- Huurwoningen
- 70%
- Koopwoningen
- 30%
Overige in Amsterdam
Cijfers voor postcodegebied 1104
- Gemiddelde WOZ waarde
- € 240.000,-
- Personen onder de 65 met uitkering
- 13%
Overige in Amsterdam
Cijfers voor postcodegebied 1104
- Adressen per km²
- 3222
- Stedelijkheid (schaal 1 op 5)
- 100%
Korte feiten over Amsterdam
Amsterdam is de hoofdstad van Nederland. De stad, in het Amsterdams ook Mokum genoemd (afkomstig uit het Jiddisch), ligt in de provincie Noord-Holland, aan het IJ, het Noordzeekanaal en de monding van de Amstel. De stad ligt in de gelijknamige gemeente Amsterdam en heeft 873.338 inwoners (1 januari 2021), Groot-Amsterdam telt 1.459.402 inwoners.
A'dam Good Story.com
Indien u vragen heeft of u wilt een bezichtiging inplannen, dan kunt u gebruik maken van het formulier hiernaast. Er zal daarna op korte termijn contact met u worden opgenomen.
Claus van Amsbergstraat 38
1102AZ, Amsterdam
(+31) 884422820 amsterdam@adamgoodstory.com www.adamgoodstory.comContact opnemen
A'dam Good Story
Nieuwste reviews
-
Reigersbos 237
Was looking for an apartment for the family. A’dam Good Story was recommended to us.It was exactly as described; fast, simple and efficient....
-
Glitterstraat 138
Had a great experience buying my apartment with Joek. From the start he was very approachable and down-to-earth, never overcomplicating thin...
-
Samira sinot
Voor de verkoop van onze woning waren wij opzoek naar een makelaar. Op aanbeveling van onze buren hebben wij contact gezocht met A’dam good...